In the heart of Gillies Bay! This custom-built 2014 ocean view home offers 7 bedrooms and sits on a generous 0.84 acre lot, ideal for a large or multi-generational family, or simply for those who enjoy extra space. The lower level was designed with flexibility in mind, featuring extra roughed-in kitchen and bath, as well as a walkout entrance perfect for a future suite. Relax on the spacious sundeck and take in the beautiful Gillies Bay views, with peace of mind from a backup generator, water filtration system, and solid modern construction. A workshop with lane access at the bottom of the property is just receiving its finishing touches. Truly appreciated by the owners, this is simply more home than needed now that the kids are grown. (id:44393)
| MLS® Number | 19441 |
| Property Type | Single Family |
| Features | Central Location |
| Bathroom Total | 3 |
| Bedrooms Total | 7 |
| Construction Style Attachment | Detached |
| Fireplace Fuel | Propane |
| Fireplace Present | Yes |
| Fireplace Type | Conventional |
| Heating Fuel | Electric, Propane |
| Size Interior | 4,979 Ft2 |
| Type | House |
| Acreage | No |
| Size Irregular | 0.84 |
| Size Total | 0.84 Ac |
| Size Total Text | 0.84 Ac |
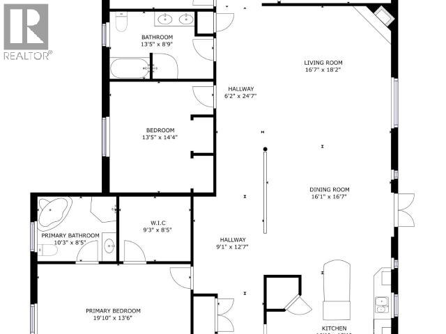
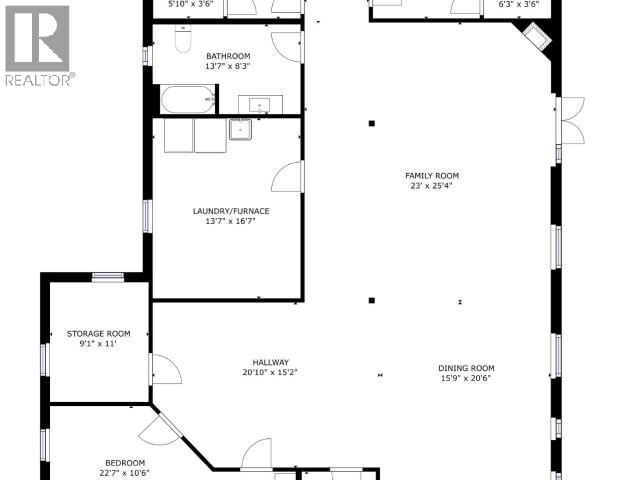
| Level | Type | Length | Width | Dimensions |
|---|---|---|---|---|
| Basement | Living Room | 23 ft | 24 ft ,4 in | 23 ft x 24 ft ,4 in |
| Basement | Dining Room | 15 ft ,9 in | 20 ft ,6 in | 15 ft ,9 in x 20 ft ,6 in |
| Basement | Primary Bedroom | 16 ft ,4 in | 14 ft ,3 in | 16 ft ,4 in x 14 ft ,3 in |
| Basement | 4pc Bathroom | Measurements not available | ||
| Basement | Bedroom | 13 ft ,7 in | 14 ft ,3 in | 13 ft ,7 in x 14 ft ,3 in |
| Basement | Bedroom | 22 ft ,7 in | 10 ft ,6 in | 22 ft ,7 in x 10 ft ,6 in |
| Basement | Laundry Room | 13 ft ,7 in | 16 ft ,7 in | 13 ft ,7 in x 16 ft ,7 in |
| Basement | Workshop | 9 ft ,1 in | 11 ft | 9 ft ,1 in x 11 ft |
| Basement | Workshop | 6 ft ,10 in | 4 ft ,6 in | 6 ft ,10 in x 4 ft ,6 in |
| Main Level | Foyer | 6 ft | 9 ft ,11 in | 6 ft x 9 ft ,11 in |
| Main Level | Living Room | 16 ft ,7 in | 18 ft ,2 in | 16 ft ,7 in x 18 ft ,2 in |
| Main Level | Dining Room | 16 ft ,1 in | 16 ft ,7 in | 16 ft ,1 in x 16 ft ,7 in |
| Main Level | Kitchen | 16 ft ,1 in | 12 ft ,1 in | 16 ft ,1 in x 12 ft ,1 in |
| Main Level | Primary Bedroom | 19 ft ,10 in | 13 ft ,6 in | 19 ft ,10 in x 13 ft ,6 in |
| Main Level | 4pc Bathroom | Measurements not available | ||
| Main Level | Bedroom | 13 ft ,5 in | 14 ft ,4 in | 13 ft ,5 in x 14 ft ,4 in |
| Main Level | Bedroom | 14 ft ,4 in | 13 ft ,5 in | 14 ft ,4 in x 13 ft ,5 in |
| Main Level | Bedroom | 13 ft ,5 in | 14 ft ,2 in | 13 ft ,5 in x 14 ft ,2 in |
https://www.realtor.ca/real-estate/29032897/4880-sanderson-road-texada-island
Contact us for more information
Mike Kaban
(604) 485-2741
www.remax-powellriver-bc.com/