Potential for 3 lot subdivision, engineer and environmental reports & drawings for a 3 lot subdivision lot have been completed, consult with city for approval. 1.08 Acre of land in the Eastern Hillsides of Chilliwack BC. Well-maintained, private 3540 SQFt home with 6 Bedroom( 3 bed Basement suite downstairs), 3 baths, 3 car garage and at least 14ft height 700SQFT separate workshop! Check out the beautifully garden as well. Ideal lot to live in now and eventually build a 3 home family estate. Gated entry with plenty of room for RV, boat, and larger vehicle parking. Only 10 minutes to the golf course, shopping and nearby schools. Total Rent for both upstairs and downstairs $3756/month. Note: photos were from previous listing. Yes still available. (id:44393)
| MLS® Number | R3018306 |
| Property Type | Single Family |
| Storage Type | Storage |
| Structure | Workshop |
| Bathroom Total | 3 |
| Bedrooms Total | 5 |
| Appliances | Washer, Dryer, Refrigerator, Stove, Dishwasher |
| Basement Development | Finished |
| Basement Type | Full (finished) |
| Constructed Date | 1993 |
| Construction Style Attachment | Detached |
| Fireplace Present | Yes |
| Fireplace Total | 2 |
| Heating Fuel | Natural Gas |
| Heating Type | Radiant/infra-red Heat |
| Stories Total | 2 |
| Size Interior | 3,539 Ft2 |
| Type | House |
| Garage | 3 |
| Open |
| Acreage | Yes |
| Size Irregular | 45000 |
| Size Total | 45000 Sqft |
| Size Total Text | 45000 Sqft |
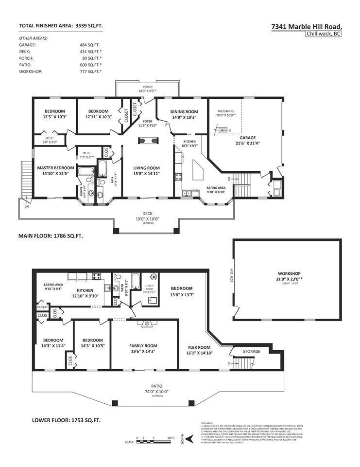
| Level | Type | Length | Width | Dimensions |
|---|---|---|---|---|
| Above | Living Room | 15 ft ,8 in | 14 ft ,11 in | 15 ft ,8 in x 14 ft ,11 in |
| Above | Dining Room | 14 ft ,9 in | 10 ft ,3 in | 14 ft ,9 in x 10 ft ,3 in |
| Above | Kitchen | 18 ft ,3 in | 9 ft ,7 in | 18 ft ,3 in x 9 ft ,7 in |
| Above | Eating Area | 9 ft ,10 in | 8 ft ,10 in | 9 ft ,10 in x 8 ft ,10 in |
| Above | Foyer | 4 ft ,10 in | 1 ft ,5 in | 4 ft ,10 in x 1 ft ,5 in |
| Above | Primary Bedroom | 14 ft ,10 in | 12 ft ,5 in | 14 ft ,10 in x 12 ft ,5 in |
| Above | Bedroom 2 | 12 ft ,5 in | 10 ft ,3 in | 12 ft ,5 in x 10 ft ,3 in |
| Above | Bedroom 3 | 12 ft ,11 in | 10 ft ,3 in | 12 ft ,11 in x 10 ft ,3 in |
| Above | Enclosed Porch | 19 ft | 10 ft | 19 ft x 10 ft |
| Main Level | Kitchen | 12 ft ,10 in | 9 ft ,10 in | 12 ft ,10 in x 9 ft ,10 in |
| Main Level | Family Room | 19 ft ,6 in | 14 ft ,3 in | 19 ft ,6 in x 14 ft ,3 in |
| Main Level | Living Room | 13 ft ,8 in | 13 ft ,5 in | 13 ft ,8 in x 13 ft ,5 in |
| Main Level | Flex Space | 16 ft ,1 in | 14 ft ,10 in | 16 ft ,1 in x 14 ft ,10 in |
| Main Level | Bedroom 4 | 14 ft ,3 in | 11 ft ,4 in | 14 ft ,3 in x 11 ft ,4 in |
| Main Level | Bedroom 5 | 14 ft ,3 in | 10 ft ,5 in | 14 ft ,3 in x 10 ft ,5 in |
| Main Level | Utility Room | 9 ft ,9 in | 7 ft ,11 in | 9 ft ,9 in x 7 ft ,11 in |
| Main Level | Enclosed Porch | 19 ft ,6 in | 10 ft | 19 ft ,6 in x 10 ft |
| Main Level | Workshop | 31 ft | 23 ft | 31 ft x 23 ft |
https://www.realtor.ca/real-estate/28501116/7341-marble-hill-road-eastern-hillsides-chilliwack
Contact us for more information
Van Anh
(604) 266-8989
(604) 263-3803
www.royalpacific.com/